Успей зафиксировать стоимость - поднятие цен в мае

зафиксировать

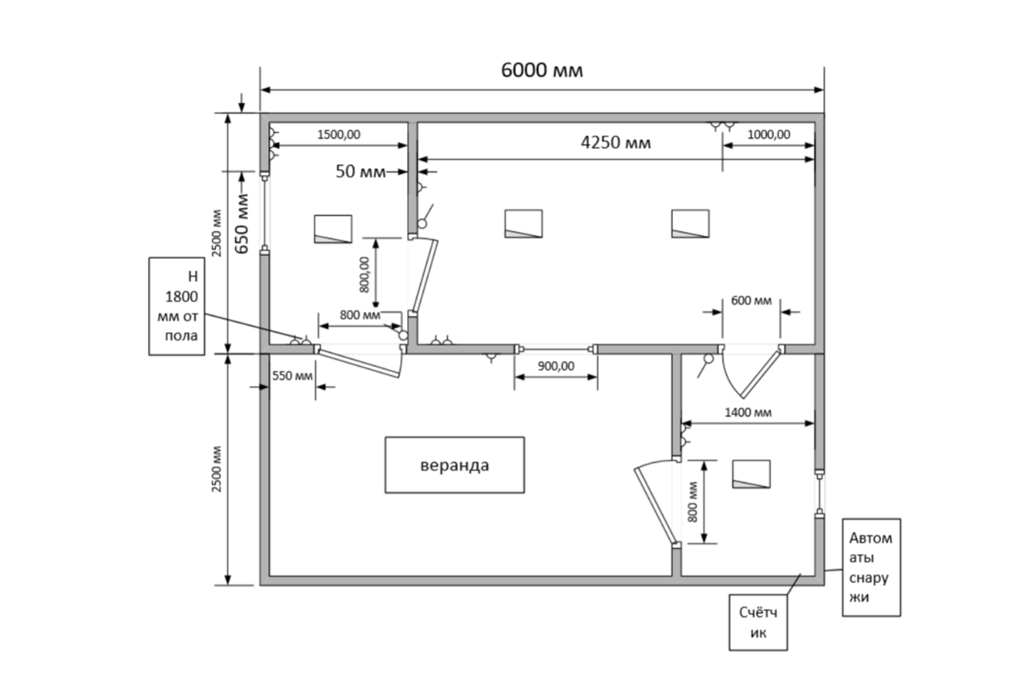
Модульный домик на металлокаркасе на базу отдыха Колокольцево

Сроки реализации: 7 дней

Общая площадь: 28,8 м2

Заказчик: Частное лицо

заказать похожий проект
  • Габаритные размеры:

    6000*5000*2600 мм
  • Силовой каркас:

    Швеллер 120*50*3 мм Угловые стойки – 75*75*5 мм
  • Внутренний каркас:

    Деревянный, обрешетка из доски Брус, размеры 100х40 мм, потолочные лаги – брус 100х40 мм
  • Кровля:

    Металлический лист 1,0 мм (швы, обработанные мастикой, эмалированные) двухскатная, конёк 0,5. Кровля оцинкованный профлист с полимерным покрытием по табл RAL 8017 коричневый цвет
  • Внешняя отделка:

    Обшивка наружных стен блок хаус
  • Внутренняя отделка (стен):

    Вагонка сорт Б
  • Внутренняя отделка (потолка):

    Вагонка сорт Б
  • Окно:

    Окно ПВХ однокамерное п/о (900х1100 мм); Окно ПВХ однокамерное п/о (500х500 мм)
  • Утепление (стены, пол и потолок):

    Теплоизоляция стен, пола и потолка плитная вата URSA Terra – толщиной 100 мм Бронтек Б (пароизоляция)
  • Пол черновой:

    Доска обрезная 100*25мм, лаги брус 100х40мм
  • Пол чистовой:

    ЦСП 20 мм + линолеум полукоммерческий, плинтуса деревянные
  • Пол чистовой веранда:

    Строганная доска 40х100 мм, уложена с зазором 5 мм. Высота перил 1 м
  • Электрика:

    Светильники светодиодные 4 шт, 6 двойных розеток, 1 розетка влагостойкая, выключатели, два автомата, счётчик, проводка в кабель–канал
  • Дверь входная:

    Дверь металлическая, сварная, утеплённая пр-во Россия (800х2050 мм)

Наши клиенты